DELEN OP
REF: N-378
Exclusieve villa met zeezicht in Benissa
Benissa, Costa Blanca Noord
Vanaf € 1.890.000
Vanaf € 1.890.000
In een rustige cul-de-sac in Benissa, omringd door de natuur en op korte afstand van golf en stranden, verrijst deze luxueuze villa. Een eigendom dat stijl, comfort en functionaliteit perfect weet te combineren, met alles wat je mag verwachten van een exclusieve woning aan de Costa Blanca Noord.
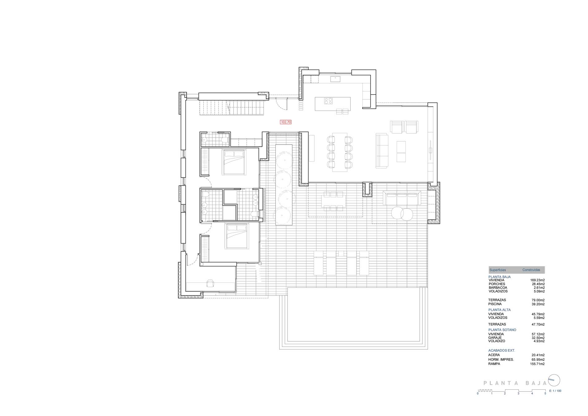
Indeling
De villa is verdeeld over drie niveaus, met een doordachte en elegante architectuur:
Het perceel van 1.021m2 biedt volop ruimte voor ontspanning. Je beschikt over een zwembad met zonneterras, een BBQ-zone en een fraai aangelegde tuin. Vanaf de eerste verdieping heb je bovendien een groot dakterras om optimaal te genieten van het mediterrane klimaat en het zeezicht in de verte.
Ligging
De ligging maakt deze villa extra aantrekkelijk:
Deze villa is ontworpen voor wie op zoek is naar rust, privacy en luxe op een van de meest gewilde locaties van de Costa Blanca. Of het nu gaat om een permanente woonst of een tweede verblijf, dit eigendom belichaamt de mediterrane levensstijl waar comfort, ruimte en natuur samenkomen.
Praktisch
Ontdek zelf de perfecte combinatie van luxe, rust en mediterrane levensstijl die deze villa te bieden heeft. Neem contact op met Adaleta voor meer informatie of om een bezichtiging te plannen.
Indeling
De villa is verdeeld over drie niveaus, met een doordachte en elegante architectuur:
- ingangsniveau: ruime garage, wasruimte en technische ruimte. Praktisch en efficiënt ingericht.
- Hoofdverdieping: royale open leefruimte met woonkamer, eetkamer en keuken. Dit alles in directe verbinding met het terras en het zwembad. Daarnaast bevinden zich hier twee ruime slaapkamers, elk met een ensuite badkamer. Binnen en buiten vloeien hier naadloos in elkaar over.
- Bovenverdieping: de master suite met eigen badkamer en een groot zonneterras. Hier geniet je in alle rust van de zonsopkomst én zonsondergang.
Het perceel van 1.021m2 biedt volop ruimte voor ontspanning. Je beschikt over een zwembad met zonneterras, een BBQ-zone en een fraai aangelegde tuin. Vanaf de eerste verdieping heb je bovendien een groot dakterras om optimaal te genieten van het mediterrane klimaat en het zeezicht in de verte.
Ligging
De ligging maakt deze villa extra aantrekkelijk:
- In een exclusieve en rustige wijk, enkel bereikbaar via een cul-de sac.
- Op 750 meter van San Jaime Golf.
- Slechts 2,2km van de bekende Pepe La Sal supermarkt.
- Diverse stranden bereikbaar binnen 2.5 tot 3.5km.
Deze villa is ontworpen voor wie op zoek is naar rust, privacy en luxe op een van de meest gewilde locaties van de Costa Blanca. Of het nu gaat om een permanente woonst of een tweede verblijf, dit eigendom belichaamt de mediterrane levensstijl waar comfort, ruimte en natuur samenkomen.
Praktisch
- Perceel: 1.021m2
- Bebouwd: 351m2
- 3 slaapkamers, 3 badkamers en gastentoilet.
- Prijs: 1.890.000 EUR
- In opbouw, oplevering eind 2026.
Ontdek zelf de perfecte combinatie van luxe, rust en mediterrane levensstijl die deze villa te bieden heeft. Neem contact op met Adaleta voor meer informatie of om een bezichtiging te plannen.
OVERZICHT
REF: N-378
TYPE EIGENDOM
Project
BOUWJAAR
2026
EPC
In aanvraag
AFSTAND TOT ZEE
2,5
km
AFSTAND TOT GOLF
0,75
km
AFSTAND TOT COM. CENTRUM
2,2
km
Vanaf € 1.890.000
BESCHIKBAARHEIDSTABEL
N-378/515
Huis
VERDIEPING:
3
•
SLAAPKAMERS:
3
•
BADKAMERS:
3
BINNEN OPPERVLAKTE:
351 m²
•
PERCEEL:
1021 m²
€ 1.890.000
KENMERKEN
Uitzicht
- • Lateraal zeezicht
- • Zeezicht op afstand
- • Zicht op zwembad
- • Panoramisch uitzicht
Entertainment
- • Privé zwembad
- • Barbecue
- • Buitenkeuken
Comfort
- • Douche
- • Fietsenberging
- • Bergruimte
- • Rolluiken
- • Elektrische rolluiken
- • Afzonderlijk toilet
- • Kelderverdieping
Exterieur
- • Terras
- • Tuin
- • Dakterras
- • Aangelegde tuin
- • Overdekt terras
Huishoudtoestellen
- • Oven
- • Microgolfoven
- • Vaatwasmachine
- • Afzuigkap
- • Inductie kookplaat
- • Koelkast
- • Diepvries
Verwarming / Klimatisatie
- • Airconditioning
- • Ingebouwde airconditioning
- • Elektrische verwarming
- • Vloerverwarming
- • Elektrische boiler
Beveiliging
- • Alarm
- • Camerabewaking